О чём это
Планировочное решение — это не «куда поставить диван», а сценарий вашей жизни дома: как вы просыпаетесь, идёте за кофе, где храните пылесос, как ребёнок ночью добирается до санузла. Когда эти детали продуманы заранее, в квартире становится легко и спокойно.
Мой подход: «живые планировки»
Я проектирую не схему, а пространство обитания — решение, которое удобно каждый день.
- Под вас, а не «в целом». Семья, график, хобби, питомцы, работа из дома — всё влияет на сантиметры.
- Свет и движение. Проходы без конфликтов, логика открывания дверей/ящиков, сценарии освещения.
- Инженерия без сюрпризов. Несущие стены, стояки, вентиляция, уклоны — закладываю сразу, без «на авось».
- Реализуемость и согласование. То, что утверждаем на планировке, строители реально выполнят, а при необходимости можно согласовать перепланировку.
Что вы получите
- 2–3 полноценных варианта с разными сценариями жизни (не «переставили стол», а принципиально разные подходы).
- Выбранный вариант с доработкой под ваши комментарии.
-
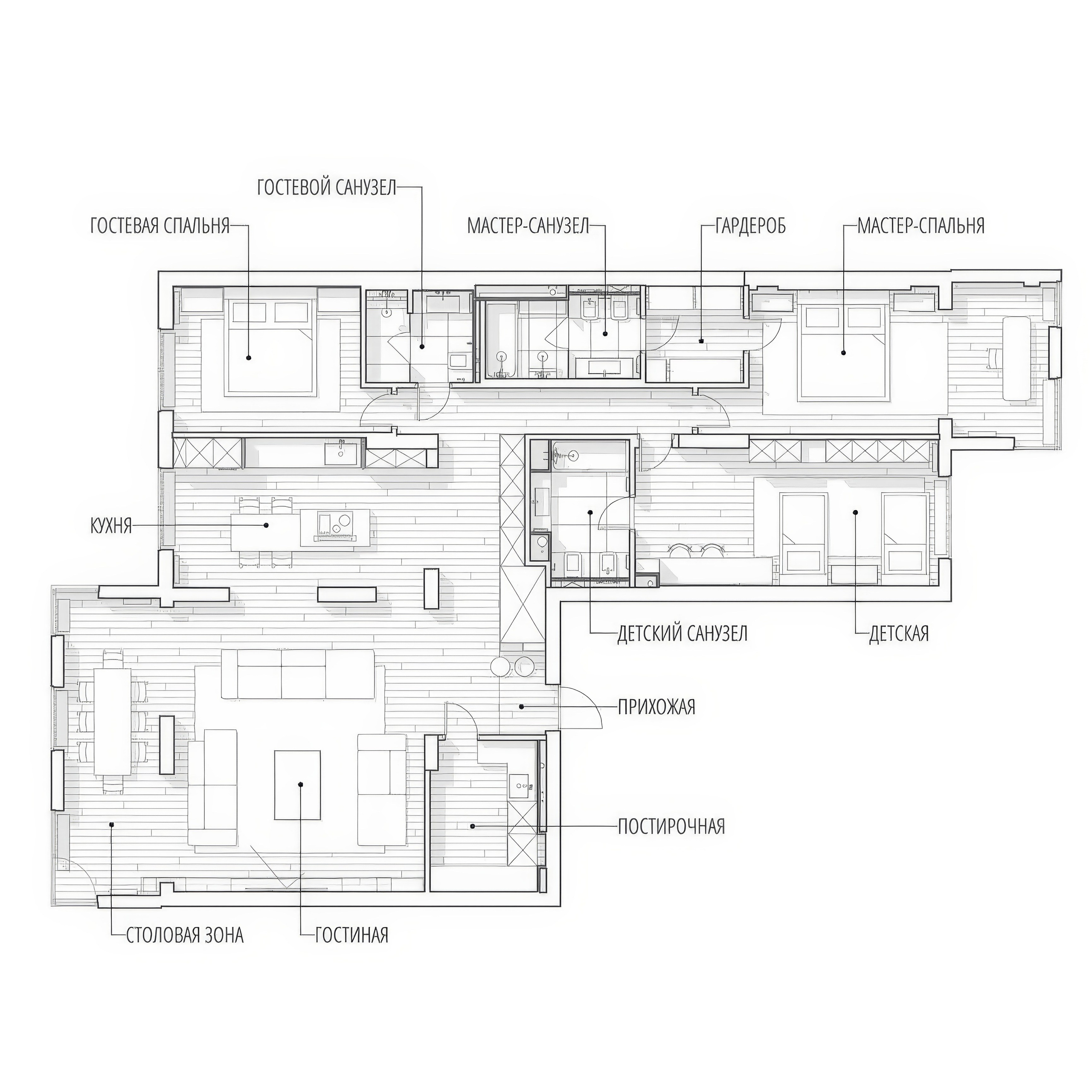
Альбом планировочного решения для ремонта:
- план демонтажа/монтажа перегородок;
- план с меблировкой, проходами и радиусами открывания;
- экспликация помещений с площадями;
- предварительная логика электрики/света/сантехники;
- пояснительная записка «почему так» — удобно согласовать с семьёй и подрядчиками.
- Рекомендации по согласованию (если нужна перепланировка).
- Авторское сопровождение на ключевых этапах.
Мои реализованные проекты можно посмотреть в портфолио.
Как мы работаем
- Знакомство и бриф (30–60 минут). Обсуждаем задачи, привычки, бюджет, сроки.
- Обмеры и аудит квартиры. Фиксирую реальные размеры, привязки и ограничения.
- Проработка вариантов. Делаю 2–3 решения, показываю плюсы/минусы каждого.
- Выбор и шлифовка. Собираем финальный вариант с вашим фидбэком.
- Передача альбома. Готовый пакет чертежей для строителей и инженеров.
Узнайте ориентировочную стоимость и состав работ написав мне через контакты.
Если остались вопросы — раздел FAQ
На что я смотрю особенно
- Проходы в активных зонах — от ~90 см, без «ловушек» открывания.
- Кухня: удобный маршрут «холодильник–мойка–плита», без бликов и теней на рабочей зоне.
- Санузел: доступ к ревизиям, корректные уклоны, безопасные зоны.
- Хранение: вещи живут там, где ими пользуются (грязная/чистая логистика, сезонность).
- «Тихие» и «шумные» зоны не конфликтуют.
- Реальные габариты мебели и техники — без «бумажной магии».
Мини-кейсы
48 м², пара. Из вытянутой комнаты сделали кухню-гостиную с обеденной заной и большим диваном с тв зоной, спальня с гордеробной, постирочную спрятали в санузле, добавили хранение у входа. Стало проще и свободнее передвигаться.
123 м², семья с двумя детьми. Развели «тихо/шумно», родителям — мастер-зона с гардеробной, детям — свой санузел и модульные рабочие места. Утренние «пробки» исчезли.
28 м², работа из дома. Шкаф-кровать со скрытым хранением, тв зона с диваном и креслом, стол-трансформер, зонирование светом. Не «спим на кухне», а удобно живём и работаем.
Частые вопросы
Когда приходить к дизайнеру? До ремонта и закупок — планировка задаёт весь проект.
Сколько вариантов получите? Обычно 2–3 рабочих решения.
Это законно? Проектирую реализуемые и согласуемые варианты. При необходимости помогу подготовить пакет документов.
Можно удалённо? Да, работаю очно и онлайн. География — по запросу.
Зачем вам профессиональная планировка
- Меньше переделок и лишних покупок.
- Понятные чертежи для прораба — меньше вопросов на объекте.
- Дом под ваши привычки — комфорт каждый день.
Полезно почитать по теме
- Статья «Перепланировка квартиры: экспертный взгляд» — когда и как согласовывать изменения.
- Статья «Типичные ошибки при выборе квартиры» — как не промахнуться с планировочным потенциалом.
- Страница «Дизайн квартиры в современном стиле недорого» — примеры подхода и структура проекта.
- Статья «Какой формат дизайн-проекта выбрать» — сравнительная таблица и рекомендации.
Блог

Перепланировка квартиры: экспертный взгляд дизайнера Валерии Котович

Типичные ошибки при выборе квартиры: взгляд практикующего дизайнера интерьера

Как выбрать квартиру и не купить себе головную боль

Дизайн кухни 2025: профессиональные рекомендации дизайнера интерьера Валерии Котович

Ремонт как система: почему без команды единомышленников невозможен качественный «ремонт под ключ»

Почему стоит обратиться за бесплатной консультацией к дизайнеру перед ремонтом

Топ-7 ошибок при ремонте квартиры: как не пожалеть о новоселье

Дизайн квартиры в современном стиле недорого

Дизайн интерьера под ключ: как выглядит идеальный процесс

Чем полезен авторский надзор и стоит ли его заказывать?

Современные стили интерьера: как выбрать свой?

Топ-5 ошибок при ремонте без дизайн-проекта

Как подготовиться к работе с дизайнером интерьера: чек-лист для заказчика




